По адресу Кутузовский проспект, 12 в 3-м квартале 2019 года появится клубный дом от Капитал Групп

На расстоянии около 500 метров от гостиницы Украина и около 800 метров от станции метро Киевская.
В планах города — появление станции метро Дорогомиловская совсем неподалеку. На пересечении Кутузовского проспекта и Украинского бульвара

Примерно здесь. Это будет станция желтой Калининско-Солнцевской линии. Метро всегда разбавляет трафик, это плюс.
Продолжаем про ЖК Кутузовский 12

Он появится на второй линии домов

Ожидается, что здание будет выглядеть вот так. В настоящее время и Москва-Сити и башенный кран видны в просвете


Соседние здания на Кутузовском проспекте 8-ми этажные. ЖК Кутузовский 12 будет 11-ти этажным

Но еще раз повторю, — он расположится на второй линии домов и визуально его высота будет совпадать с высотой соседних домов. По крайней мере, на паспорте объекта все это выглядит именно так
Про вторую линию домов

Как таковых домов там нет. Огромное пространство между Кутузовским проспектом и набережной Тараса Шевченко — территории, уже бывших Завода пишущих принадлежностей и Бадаевского пивовареного завода.
Это участок земли площадью около 14 Га с долгой противоречивой историей. Планы по его застройке появились еще в 2004 году. С тех пор эти планы неоднократно менялись. Менялись концепции застройки, менялись участники проекта. В 2010 году Градостроительно-земельная комиссия вообще решила прекратить реализацию каких-либо проектов здесь. По причине «тяжелой транспортной ситуации в этом районе».
В конце 2016 года, Павел Тё был избран новым председателем совета директоров Capital Group. В озвученных им первоочередных проектах компании был и такой: «проект на набережной Тараса Шевченко, на территории Бадаевского пивоваренного завода»

В январе 2017 г. на стройплощадке наблюдалась такая картина (на фото выше)

А это уже декабрь 2017 г.

В январе 2018 г. Capital Group объявила о завершении заливки фундамента
Полное завершение строительства клубного дома ЖК Кутузовский 12 планируется на в 3 кв. 2019 г. Очень интересно, как к этому времени будет выглядеть остальная территория Бадаевского пивоваренного завода? Это по прежнему будет креативно-богемный кластер в оставшихся корпусах? Или с появлением ЖК Кутузовский 12 наступят перемены и на территории ближе к набережной?
Про само здание ЖК Кутузовский 12

Кутузовский, 12 вдохновлён итальянскими палаццо и советским неоклассицизмом. От первых он взял дворцовую колоннаду. Пятидесятиметровые хрустальные колонны делают архитектуру изящной.
Серый гранит замиксуют с хрустальными колоннами, высотой 50 м.
Колоннада дома на Кутузовском, 12 выполнена из кварцевого стекла, получаемого выплавкой природного горного хрусталя. Такое же стекло используют при изготовлении линз маяков и других оптических приборов, которые требуют материалов высокой чистоты

Капители и крепежные элементы колонн сделаны из латуни — её теплый цвет придает колоннаде торжественный и парадный вид. Ночью мерцающая лунная подсветка структурирует здание и выделяет его среди соседей
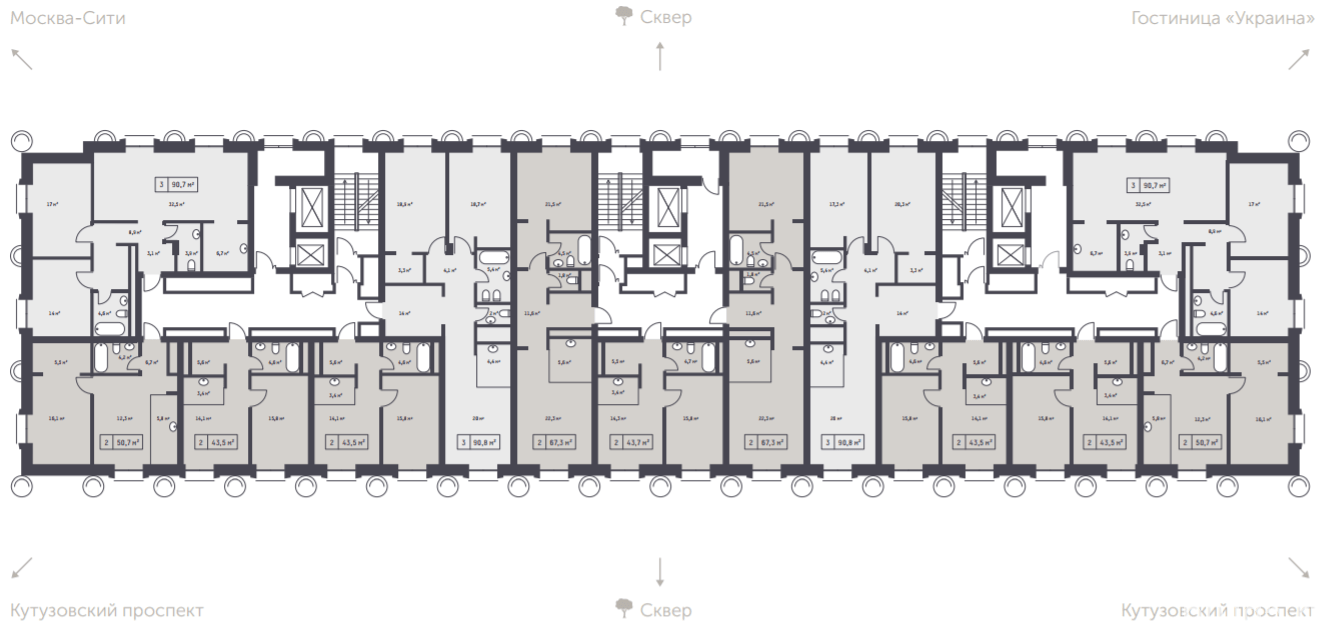
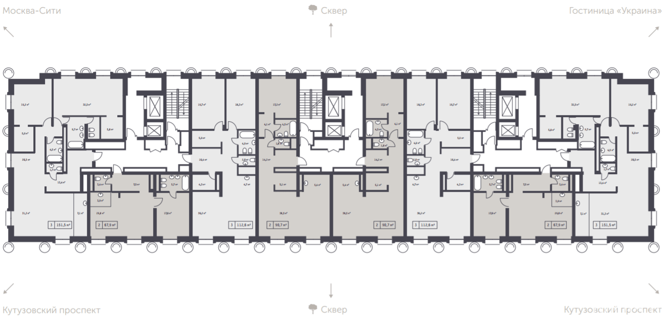
В доме предусмотрено 123 квартиры площадью 43-291 кв. м, включая 8 пентхаусов с высотой потолков 8 метров и «двойным светом»
В ЖК Кутузовский 12 квартиры можно совмещать по горизонтали. Посмотрим планировки
В здании всего три секции. Самая приватная секция — средняя. Здесь на этаже 2-3 квартиры. Но и в крайних секциях квартир на этаже немногим (3-5) больше. Некоторые квартиры имеют окна, которые выходят на обе стороны здания. В каждой секции — по два лифта
Застройщик понимает потенциал данной локации и рассчитывая на определенную аудиторию, сам предложил варианты объединения квартир
Покупатели получат свои квартиры со следующими опциями:
Межквартирные стены — кладочные, толщиной 300 мм
Внутренние перегородки — кладочные, толщиной 120 мм
Потолки — подготовка бетонных поверхностей, затирка, грунтовка и обеспыливание
Двери и порталы входных дверей предусмотрены в соответствии с дизайн-проектом мест общего пользования. Порталы внутриквартирных дверей: штукатурка, затирка, грунтовка и обеспыливание
Полы за исключением мокрых зон: подготовка бетонной поверхности (в т.ч. выравнивание, обеспыливание,грунтовка), звукоизоляционная подложка 10 мм., черновая стяжка 40 мм
Конструкции переплетов окон и витражей — из алюминиевого или деревянного профиля с терморазрывом, сдвухкамерным стеклопакетом
По всему периметру фасада квартиры установлены встраиваемые в пол конвекторы
Для кондиционирования квартир предусматривается система VRV/ VRF с установкой единого наружного блока на балконе каждого этажа для всех квартир в одной секции данного этажа
Водоснабжение: в зоне стояков за технологическим лючком предусматриваются ответвления трубопроводов с установкой запорной арматуры, далее проложены трубопроводы до мест установки сантехнического оборудования
Предусматривается установка: видеодомофонов; абонентской точки радиосети в кухнях и в комнатах смежных с кухнями. автономных дымовых пожарных извещателей в жилых комнатах и кухнях; тепловых и ручных пожарных извещателей в прихожих.
Вменяемая площадь, высокие потолки — все как и должно быть, если твои окна выходят на начало Кутузовского проспекта

В двусветном лобби высотой 9 метров колоннам вторят вертикальные панно и потолок из латунных трубок-светильников
Каждое лобби оформят в разной тематике — бамбук, тайга, тропики. На первом этаже предусмотрены зоны ожидания с мягкой кожной мебелью. В парадных установят биокамины и зеркальные ресепшн-стойки.
Подземный паркинг — двухуровневый на 129 машиномест. На его крыше будет разбит «Сад четырех сезонов». Разнообразные растения в кадках будут цвести все теплое время года

Придомовую закрытую территорию вымостят гранитом и установят кресла из дерева
На официальном сайте проекта есть новость о том, что только «За первый месяц с момента старта продаж в октябре 2017 года продано более 20% квартир.»
Очень удачное место, статусная архитектура, грамотные планировки и полностью огороженная территория обусловливают высокий интерес к ЖК Кутузовский 12.
Еще больший интерес вызывает все тот же вопрос, — чем же в итоге окажется ЖК Кутузовский 12? Тихим одиноким статусным местом? Или он войдет в большой единый проект по освоению ближайшей территории? Очень крутая идея — вписать хрусталь в серый гранит. Есть ли что-то похожее в плане дорожной сети в округе?
Вам есть что добавить? Оставьте отзыв в комментариях ↓
Смотрите все обзоры на карте новостроек
Чтобы не пропускать новые обзоры подпишитесь на Телеграм или Вконтакте. Подпишитесь!
Реклама в блоге: написать
Поддержать build5
Больше на Build5.ru
Подпишитесь, чтобы получать последние записи по электронной почте.